空き家バンク登録物件

物件情報
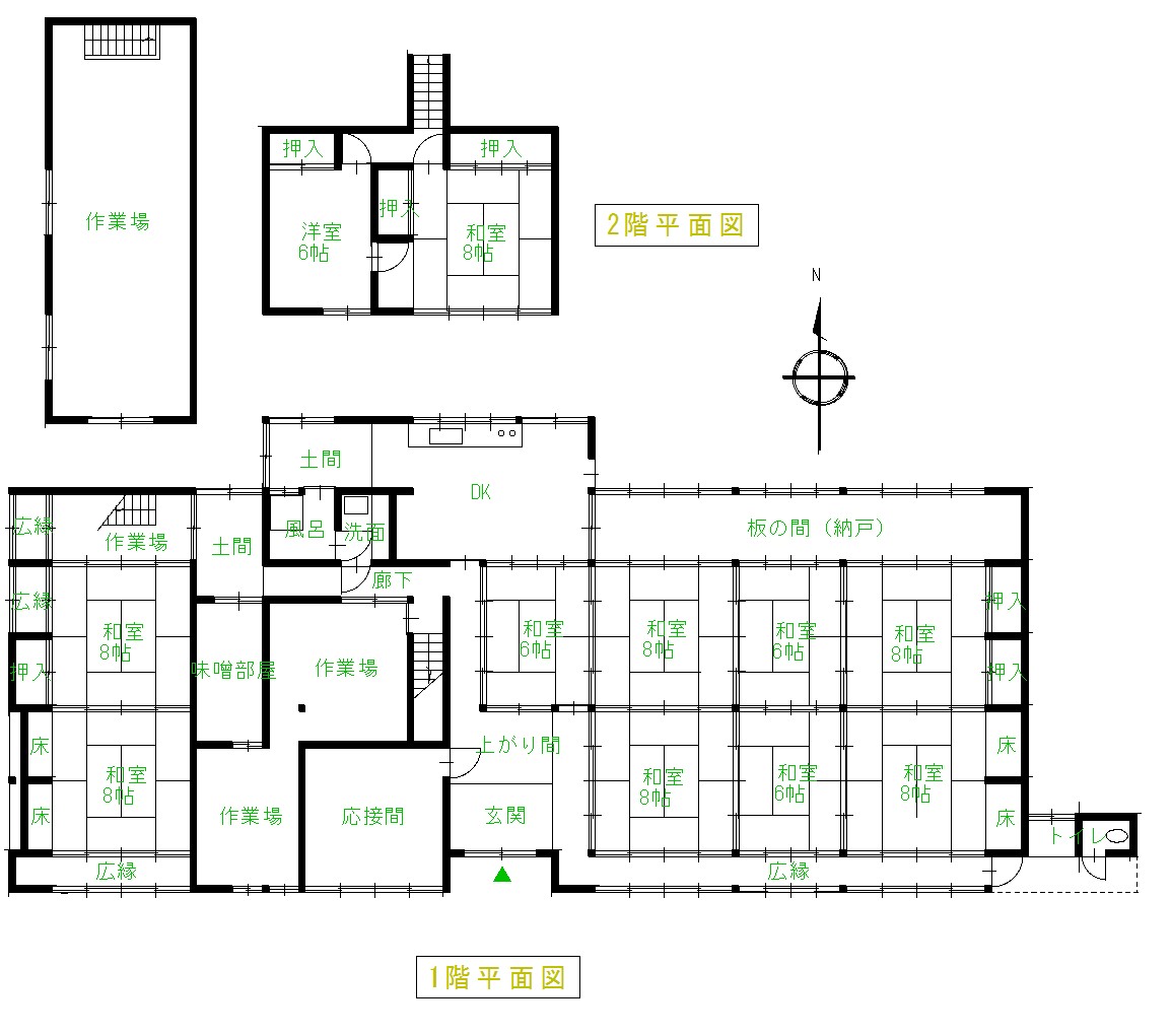
物件番号:766
- 内覧受付停止中(交渉中)
- 土地・建物
- 売却
- 農地付き
- 所在地
- 笠置町
- 希望価格
- 売却 300万円
特記事項
・家財の片づけは所有者と購入希望者で相談の上、処分方法を決めます。
・建物は笠置町の東部、標高390mの南東向きで恵那山等の眺望が楽しめるひな壇地形に立地しています。また、江戸時代の建築と推定され、幅は約25m奥行約10mほどで、一部2階のある大きな建物です。
・建物の状態は、母屋は屋根棟瓦に傷みが見られ雨漏りの形跡があります。室内では1階の床の大部分が劣化し、床抜けもあります。住むためには大がかりな修繕工事が必要です。別棟の建物で西側に隣接した馬屋は屋根が崩れ落ち、東端のトイは屋根が壊れて使用困難な状況です。
・市道からの敷地までの通路は自己所有地で車の駐車スペースも確保できます。ただし、敷地とは1mほどの段差があり、玄関までの車の乗り入れはできません。
・建物内部の床の傷みが顕著な部分があり、部分的な内覧となります。
※土砂災害警戒区域等:指定なし ※洪水想定区域 L1.L2 :指定なし
物件の内覧を希望される場合は
利用登録が必要です。
利用登録を希望される方は、オンラインまたは書類提出のどちらかの方法で利用登録を行ってください
オンラインで申し込み
書類の提出で申し込み
※書類提出で申し込みをされる場合は、書類を印刷し、必要事項を記入の上恵那市役所移住定住推進室(恵那暮らしサポートセンター)まで来訪または郵送で書類をご提出ください。
※内覧希望の方は利用登録後、お問い合わせフォームかお電話にて内覧希望の旨をご連絡ください。





























